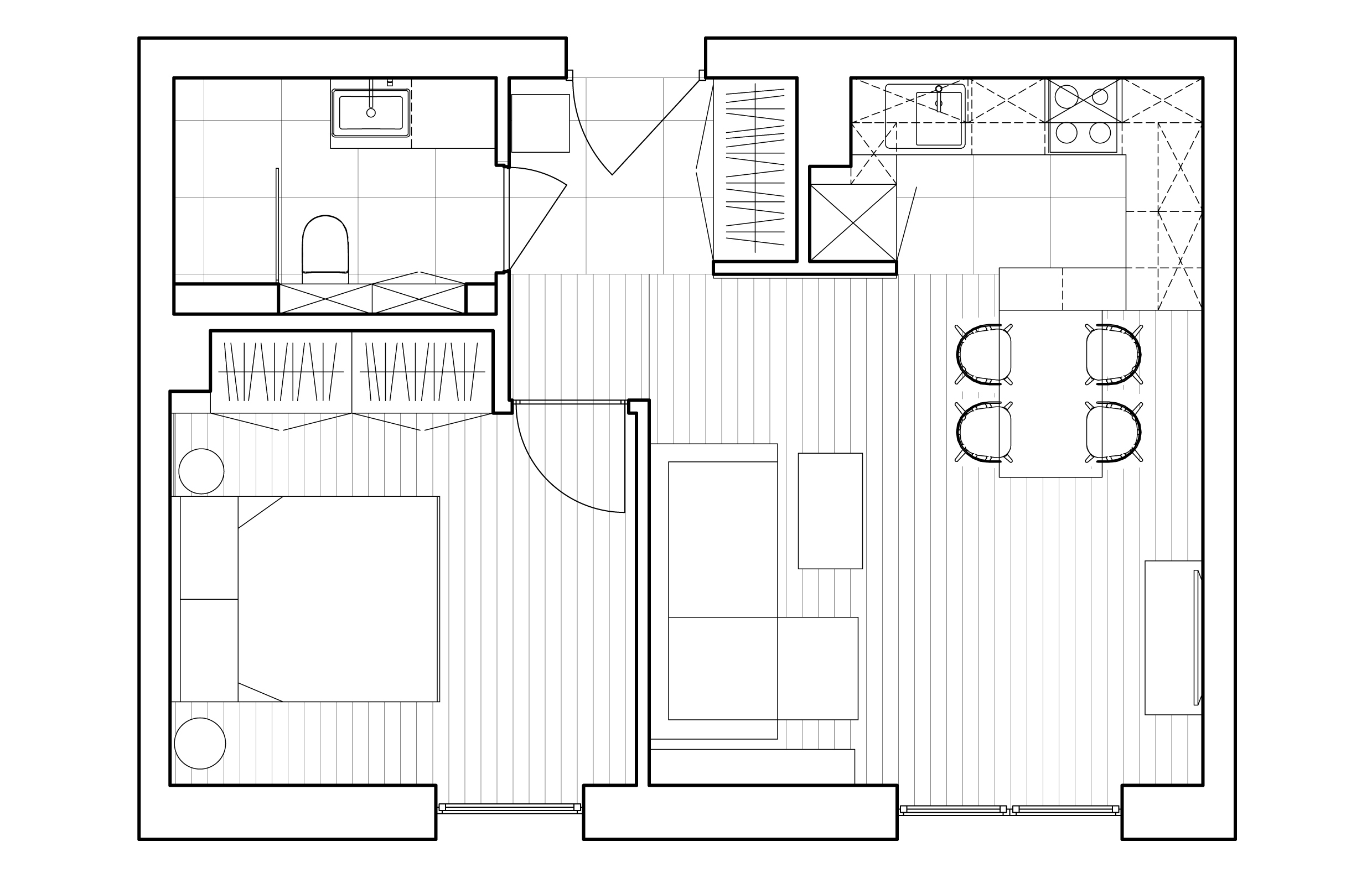
WROCŁAW – MIESZKANIE 43 m2

Rok: 2023
Lokalizacja: Wrocław
Status: realizacja
Powierzchnia: 43 m2
Zdjęcia: Magdalena Miszczyk-Tatara
Kategoria: wnętrza prywatne

W pełni funkcjonalne niewielkie mieszkanie z kuchnią, jadalnią z komfortowym stołem, salonem, sporą sypialnią oraz łazienką, rozświetlone dużą ilością luster i mocnymi akcentami. Pomysł na wnętrze to kompozycja kontrastów: miękkie meble wypoczynkowe, struktura na ścianie, błyszczące płaszczyzny luster połączone z ciepłym drewnem.
Privacy Settings
We use cookies to enhance your experience while using our website. If you are using our Services via a browser you can restrict, block or remove cookies through your web browser settings. We also use content and scripts from third parties that may use tracking technologies. You can selectively provide your consent below to allow such third party embeds. For complete information about the cookies we use, data we collect and how we process them, please check our Privacy Policy
Youtube
Consent to display content from - Youtube
Vimeo
Consent to display content from - Vimeo
Google Maps
Consent to display content from - Google